Anzola Emilia - Ufficio a reddito luminoso e arredato

Riferimento
Prezzo 190.000 €
Contratto vendita
Tipologia Ufficio
Comune Anzola dell'Emilia
Zona Anzola dell'Emilia
Camere 2
Bagni 2
Mq 165
Anno di costruzione 2002
Spese condominiali 100 €
Classe energetica E
I.P.E 163.85 kWh / sqm / year
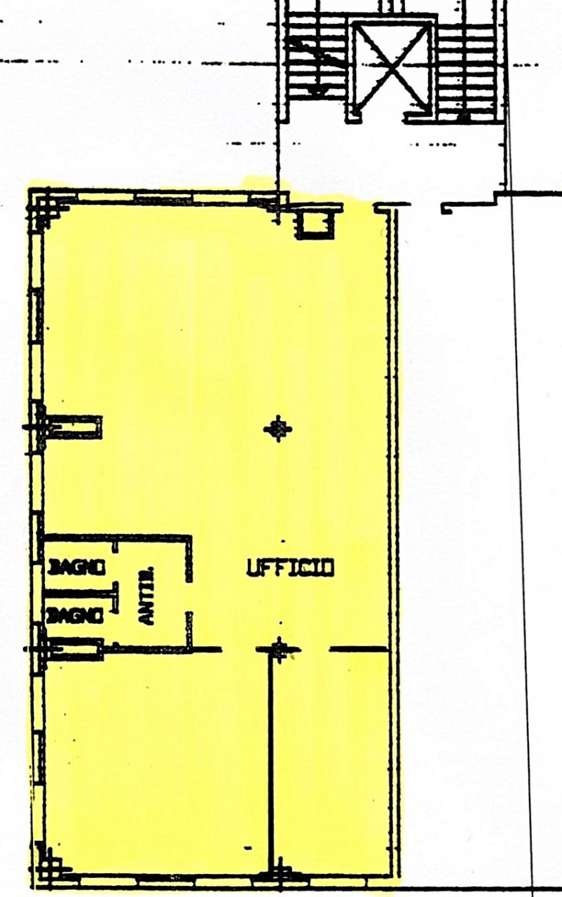
Anzola Emilia fronte Via Emilia (zona industriale Chiesaccia) nelle immediate vicinanze dell'uscita autostradale Valsamoggia, in palazzo direzionale fronte Via Emilia con grande parcheggio antistante, Ufficio luminoso panoramico e ARREDATO posto al quinto ed ultimo piano e composto da un vano principale + 2 uffici divisi da pareti mobili e 2 servizi igienici. E' dotato di scrivanie di ogni misura oltre a vari e capienti armadi. Riscaldamento autonomo, climatizzazione e ascensore. ATTUALMENTE LOCATO A IMPORTANTE AZIENDA AD € 1.000,00 MENSILI FINO AL 30/11/2029. PER ULTERIORI DETTAGLI O VISITE SUL POSTO CONTATTACI ALLO 051734835.

Mappa

Contattaci

INFORMAZIONI EXTRA

AMBIENTI

Soggiorno angolo cottura
Giardino condominiale

LIVELLI & COMFORT

Livelli Ultimo piano
Piano numero 5
Aria condizionata
Riscaldamento autonomo
Accesso disabili
Ascensore
Numero accessi carrai 1
Numero portoni 1
Porta blindata

 

freccia_indicatore
163.85 kWh/m3 anno

planimetrie

Anzola Emilia - Ufficio a reddito luminoso e arredato